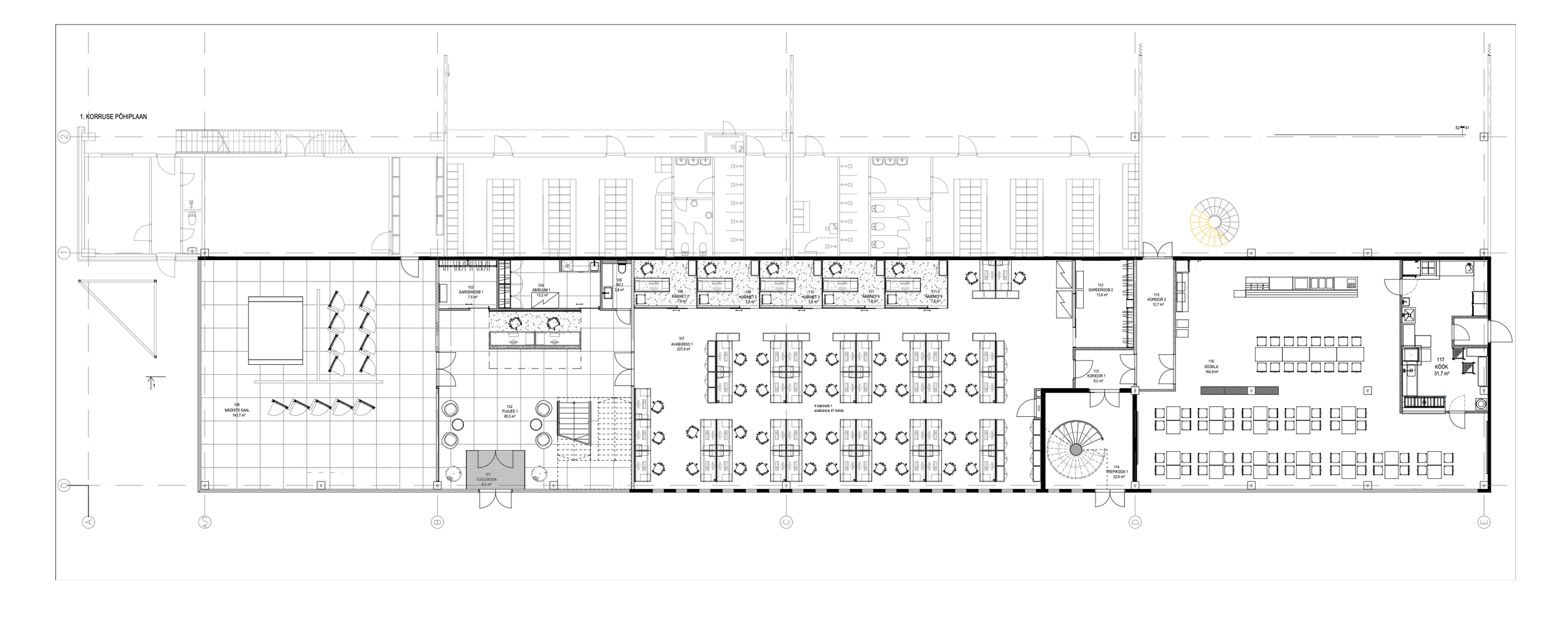
Büroohoone projekteerimine ja sisekujundus — Vaikla Disain

saku metall büroohoone projekteerimine ja sisekujundus

Valminud: Projekt2018

pindala: 2000m2

Tellija: Saku Metall AS

Interjöör: Vaikla Disain – Argo Vaikla, Katrin Vaikla, Kaidi Org

Büroohoone projekteerimine ja sisekujundus — Vaikla Disain
Previous
Previous

büroohotell Workland

Next
Next

valgus ruudus