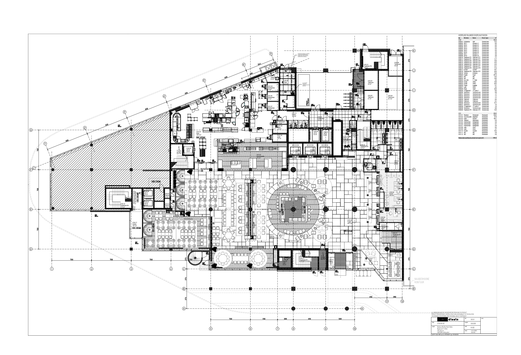
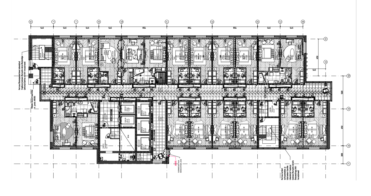
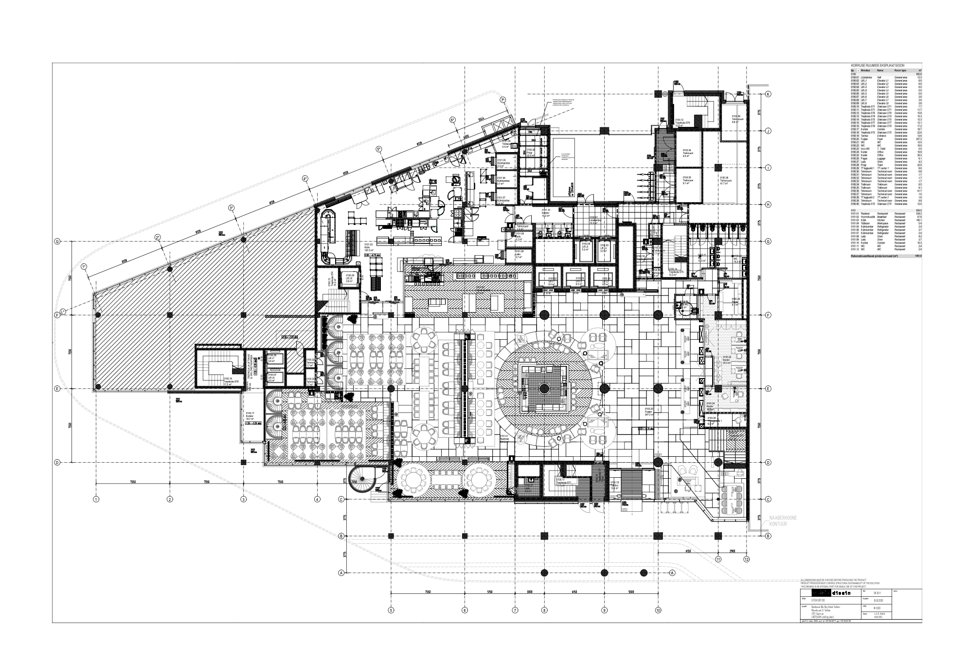
radisson collection hotell tallinnas
Valminud: 2022
Tellija: EFTEN capital
pindala: 22000 m²
Sisearhitektuur ja disain: Vaikla Disain – Argo Vaikla, Katrin Vaikla, Kaidi Org,
mari-liis süld, kristoffer vaikla
fotoprojekt “SIIN” - Kristoffer vaikla, Karl anders Vaikla
Fotod: Kristoffer Vaikla

